
Grundstücke Hardt III - Abrundung
Ausschreibung zum Verkauf der Bauplätze im Baugebiet "Hardt III Abrundung", Gemarkung Gernsbach-Reichental
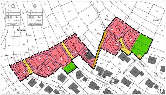
Das Baugebiet "Hardt III Abrundung" befindet sich im Ortsteil Reichental und umfasst eine Fläche von ca. 0,69 ha.
Die Stadt Gernsbach bietet jungen Familien und sonstigen Interessenten Baugrundstücke im Neubaugebiet „Hardt III Abrundung“ im Stadtteil Reichental an. Die Grundstücke zeichnen sich durch ihre landschaftlich reizvolle Lage an einem nach Süden gerichteten Hang aus. Der Stadtteil Reichental ist durch eine lebendige Ortsgemeinschaft mit zahlreichen Vereinen geprägt. Durch die Lage inmitten der Natur, der Nähe zum Kaltenbronn sowie das örtliche Freibad besteht ein großes Naherholungsangebot. Die Grundversorgung ist durch einen kleinen Dorfladen gesichert. Für die Kleinkinder besteht eine örtliche Betreuungsmöglichkeit ebenso für Kindergartenkinder. Die Grundschule befinden sich im benachbarten Stadtteil Hilpertsau. Der Besuch der weiterführenden Schulen ist in der Kernstadt möglich.
Planungsrecht und Erschließung:
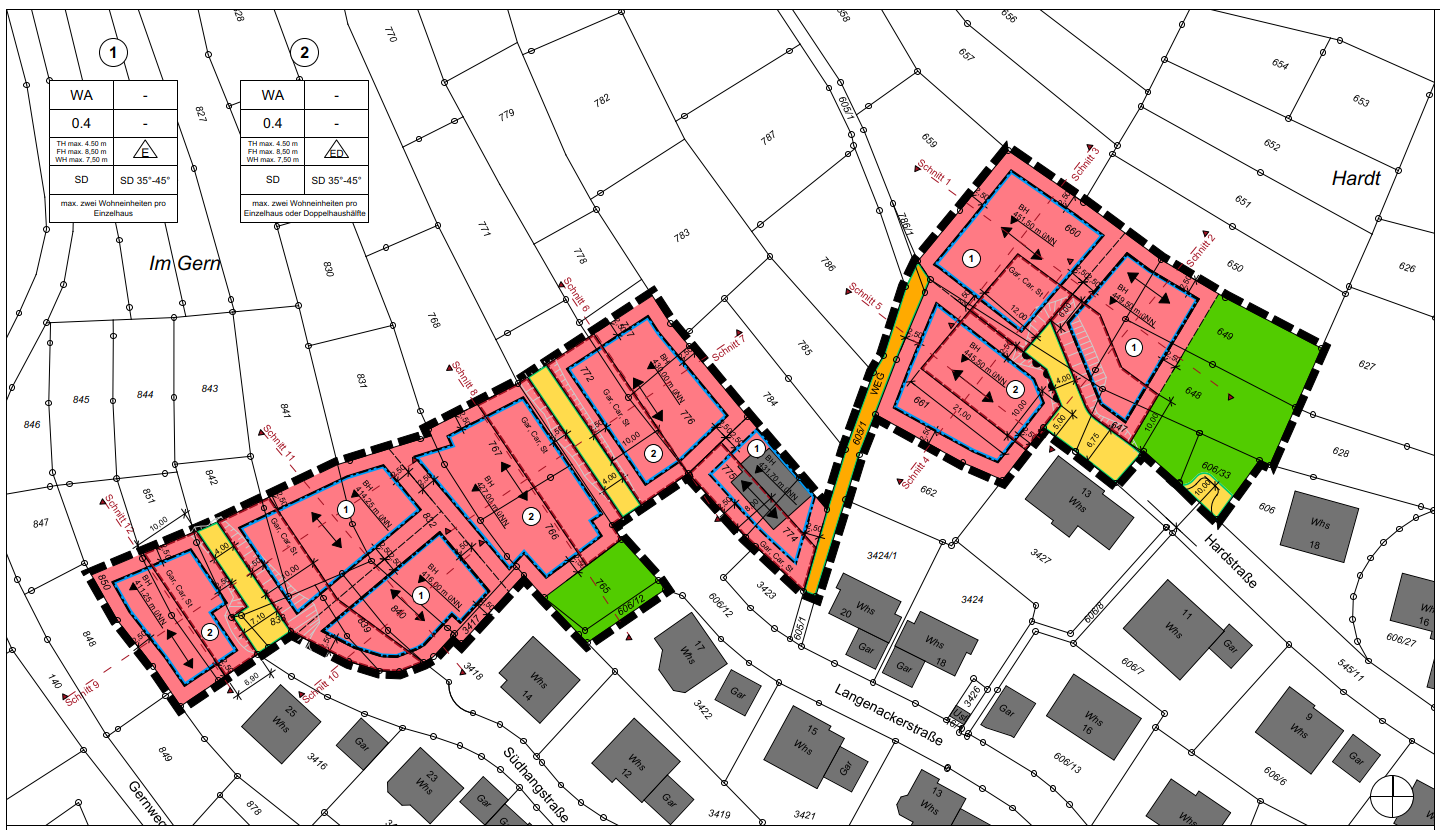
Die Bauplätze befinden sich im Geltungsbereich des Bebauungsplanes „Hardt III, Abrundung"
Folgende Bebauung ist möglich: Einfamilienhäuser bzw. Doppelhaushälften.
Alle Bauplätze sind voll erschlossen. Die Erschließungskosten gemäß BauGB und KAG sind im Grundstückspreis enthalten.
Die vom Gemeinderat am 19. Oktober 2020 beschlossenen bzw. durch Beschluss des Gemeinderates vom 25. Juli 2022 geänderten Vergabekriterien können Sie hier (442 KB) einsehen.
Link zum Bewerberbogen (205 KB)
Allgemeine Bauplanungsrechtliche Unterlagen
1. Bebauungsvorschriften (173 KB)
2. Schnitte (604 KB)
3. Legende (392 KB)
4. zeichnerischer Teil (Gesamt) (234 KB)
städtische Bauplätze Hardt III
Südhangstraße 16, Flst. Nr. 3533
| Größe | 544 qm | |
|---|---|---|
| Lage | Gernsbach-Reichental Südhangstraße 16, Flurstück Nr. 3533 Lageplan (96 KB) |
|
| Preis | 108.800,00 € (200,00 €/qm) | |
| Bebaubarkeit | Einzelhaus Auszug Bebauungsplan (231 KB) Nutzungsschablone (208 KB) |
|
| Ansprechpartner | Stadt Gernsbach Liegenschaftsverwaltung Frau Merkel Igelbachstraße 11 76593 Gernsbach Tel.: 07224/644-241 liegenschaften@gernsbach.de |
|
RESERVIERT Langenackerstraße 34, Flst. Nr. 3538
| Größe | 340 qm | |
|---|---|---|
| Lage | Gernsbach-Reichental Langenackerstraße 24, Flurstück Nr. 3538 Lageplan (96 KB) |
|
| Preis | 71.400 € (210,00 €/qm) | |
| Bebaubarkeit | Doppelhaushälfte Auszug Bebauungsplan (228 KB) Nutzungsschablone (208 KB) |
|
| Ansprechpartner | Stadt Gernsbach Liegenschaftsverwaltung Frau Merkel Igelbachstraße 11 76593 Gernsbach Tel.: 07224/644-241 liegenschaften@gernsbach.de |
|
Hardtstraße 20, Flst. Nr. 3541
| Größe | 590 qm | |
|---|---|---|
| Lage | Gernsbach-Reichental Hardtstraße 20, Flst. Nr. 3541 Lageplan (96 KB) |
|
| Preis | 118.000,00 € (200,00 €/qm) | |
| Bebaubarkeit | Einzelhaus Auszug Bebauungsplan (227 KB) Nutzungsschablone (1,5 MB) |
|
| Ansprechpartner | Stadt Gernsbach Liegenschaftsverwaltung Frau Merkel Igelbachstraße 11 76593 Gernsbach Tel.: 07224/644-241 liegenschaften@gernsbach.de |
|



